Budapest III. kerület - Építési engedélyezés alatt álló, prémium fejlesztési telek
Részletes leírás
az ingatlanról
Budapest III. kerület – Engedélyezés alatt álló prémium fejlesztési telek eladó
Vannak telkek, amelyek csak helyrajzi számok.
És vannak telkek, amelyek projektek.
A Szőlő utcai, 511 m²-es lakóövezeti telek az utóbbi.
Budapest III. kerületének dinamikusan fejlődő, stabil kereslettel rendelkező részén kínálom megvételre ezt az építési engedélyezés alatt álló, teljes közművesített prémium fejlesztési telket, amely előkészített tervdokumentációval és beadott engedélyezési eljárással rendelkezik.
Ez nem üres földterület.
Ez egy azonnal továbbvihető beruházás.
A projekt – számokban mérhető potenciál
Telek mérete: 511 m²
Övezeti besorolás: Ln-2/ZK-1
Beépíthetőség: 70%
Bruttó szintterületi mutató: 4.50
Maximális építménymagasság: 20,50 m
Terepszint alatti beépíthetőség: 0%
Tájolás: D-Ny
Közművek:
- víz a telken
- villany a telken
- gáz a telken
- csatorna a telken
A telek teljes infrastruktúrával rendelkezik, így az engedély megszerzését követően a kivitelezés rövid időn belül megkezdhető.
Tervezett fejlesztés
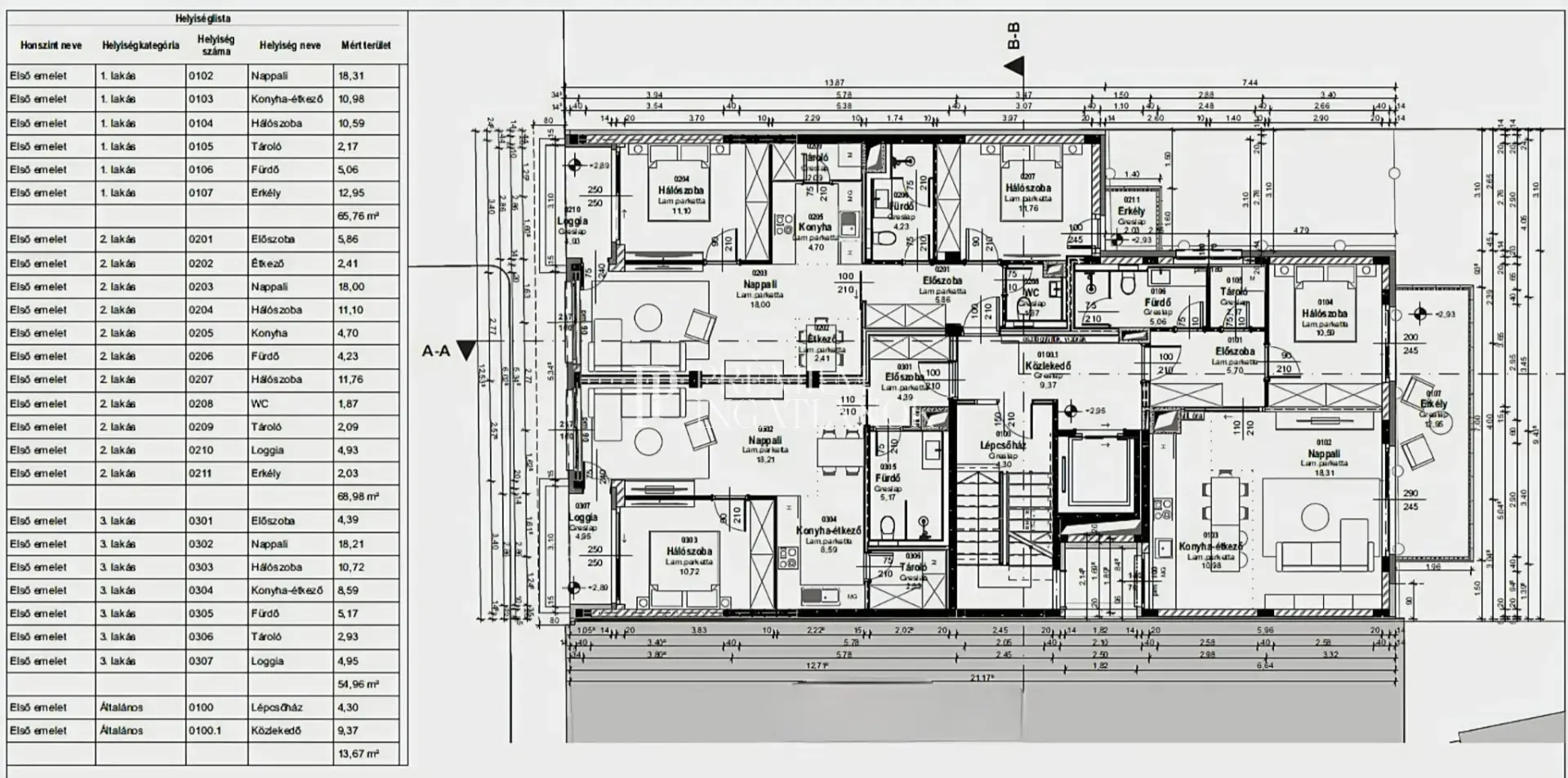
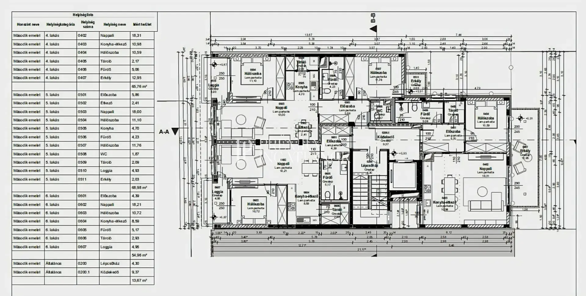
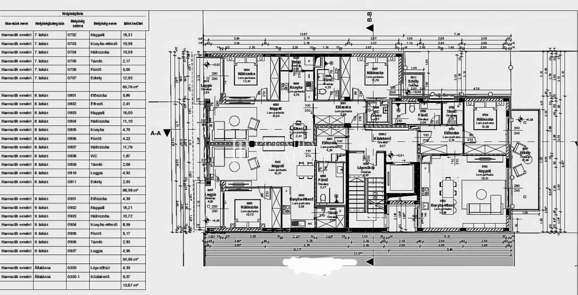
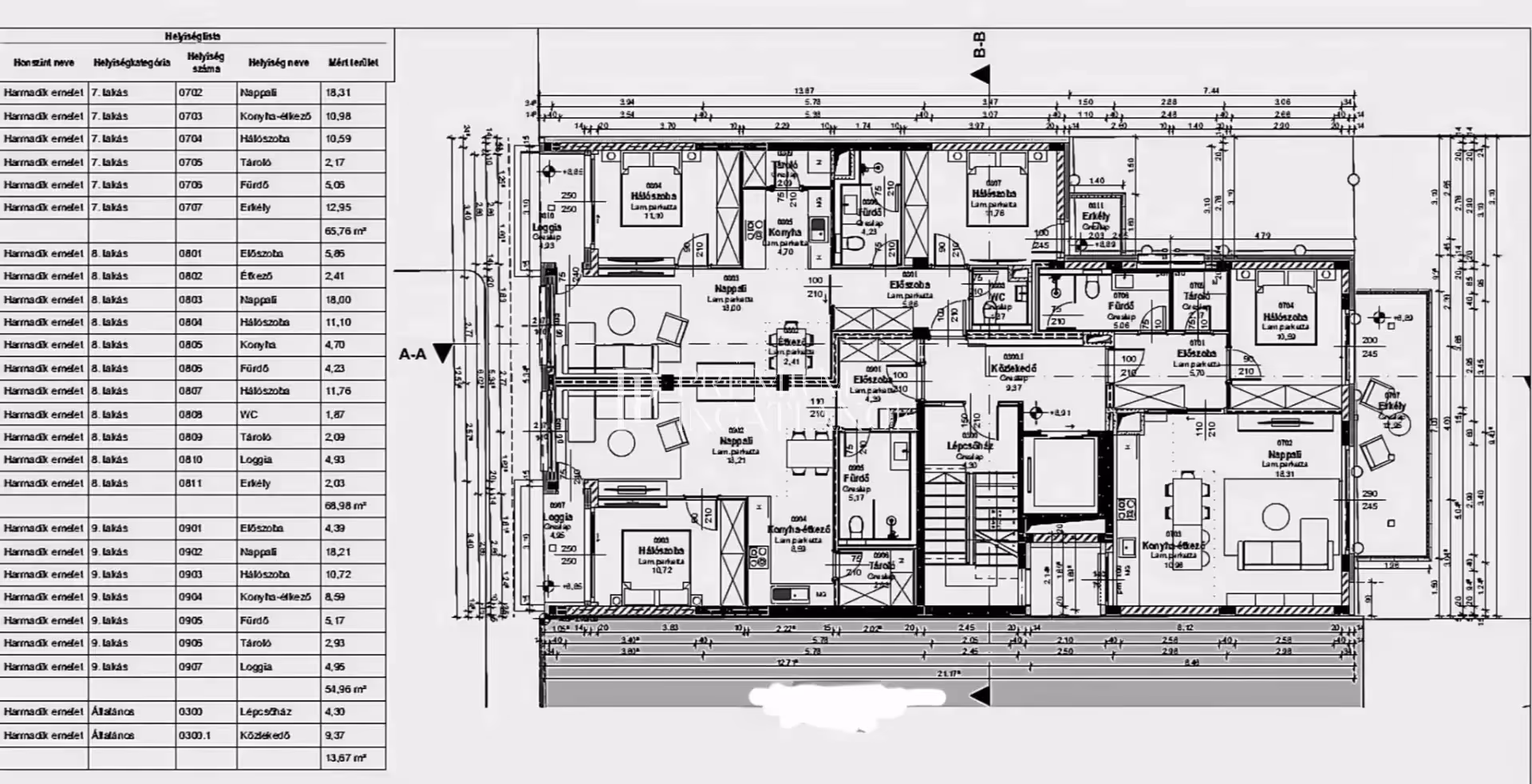
A beadott terv alapján egy modern, piacképes társasház fejlesztésére alkalmas:
- 5 szintes épület
- 12 lakás
- Összes nettó lakóterület: 754 m²
- Összes teraszfelület: 100 m²
- 10 gépkocsi-beálló
- 12 tároló
A lakásmix gondosan előkészített, értékesítési és hosszú távú bérbeadási célra egyaránt optimalizált.
A projekt elvi építési engedéllyel rendelkezik, a végleges engedély várhatóan 2026 március végéig megszerzésre kerül.
Miért Budapest III. kerület?
Óbuda az elmúlt évek egyik legstabilabban fejlődő budapesti mikropiaca.
Erős lakóövezeti kereslet
Kiváló infrastruktúra
Közlekedési kapcsolatok
Szolgáltatási háttér
Értékálló környezet
Környezete kiegyensúlyozott, élhető, mégis könnyen megközelíthető, ami ideálissá teszi társasház fejlesztéshez.
A III. kerületben az engedélyezett, előkészített fejlesztési telkek kínálata korlátozott. Az idő itt konkrét pénzügyi tényező.
Befektetési szempontok
A projektparaméterek alapján ez egy előkészített, engedélyezési fázisban lévő beruházás, amely minimalizálja:
- a tervezési kockázatot
- az időveszteséget
- az adminisztratív bizonytalanságot
Fejlesztők és beruházók számára különösen értékes az a tény, hogy a projekt nem nulláról indul.
Kinek ajánlom?
- társasház-fejlesztőknek
- projektbefektetőknek
- generálkivitelezői háttérrel rendelkező beruházóknak
- hosszú távú portfólióépítőknek
Ez a telek nem spekuláció.
Ez egy előkészített fejlesztési alap.
Összegzés
A Budapest III. kerületben eladó, építési engedélyezés alatt álló Szőlő utcai telek egy előkészített, prémium fejlesztési lehetőség.
Az érték itt nem csupán a négyzetméterben, hanem az időben és a kockázatcsökkentésben rejlik.
Amennyiben egy azonnal továbbvihető projektet keres Budapest stabil, lakóövezeti környezetében, örömmel állok rendelkezésére a teljes tervdokumentáció bemutatásával.

Az ingatlan
paraméterei
Nézzen körbe leendő otthonában!
Térkép és elhelyezkedés

Felkutatom, amire azt mondják: lehetetlen
Abban hiszek, hogy az ügyfelek igényeinek gyors és reális felmérése az igazán hatékony munka alapköve, amivel mindenkinek segíthetek álomingatlant találni. Meggyőződésem, hogy fel kell ismerni, és gyorsan kell lereagálni az olykor váratlan lehetőségeket és helyzeteket. A végsőkig kitartó, kreatív, maximalista és céltudatos vagyok.
Célom, hogy a hazai ingatlanbefektetőket és a leendő lakástulajdonosokat összekössem a számukra tökéletes ingatlannal, amiben minden perc boldogan telik majd, vagy jelentős megtérülést hoz. ÉN Hiszem, hogy az ingatlan Érték!
A kérdés csak az, hogy “Értékeit” kire bízza?
Ha profi szakembert keres, forduljon hozzám bizalommal!












