Budapest 2. kerület - irodaháznak, klinikának, rezidenciának is alkalmas luxus ingatlan
Részletes leírás
az ingatlanról
IRODAHÁZNAK, KLINIKÁNAK, REZIDENCIÁNAK is alkalmas luxusingatlan Budapest II. kerületében
Kiváló adottságú ingatlant ajánlunk, amely Budapest egyik legszebb részének zöldövezeti részében található, közel Budakeszihez, a kerület egyik fő útvonalának, a Budakeszi útnak a közvetlen közelében, kellemes természetes környezetben.
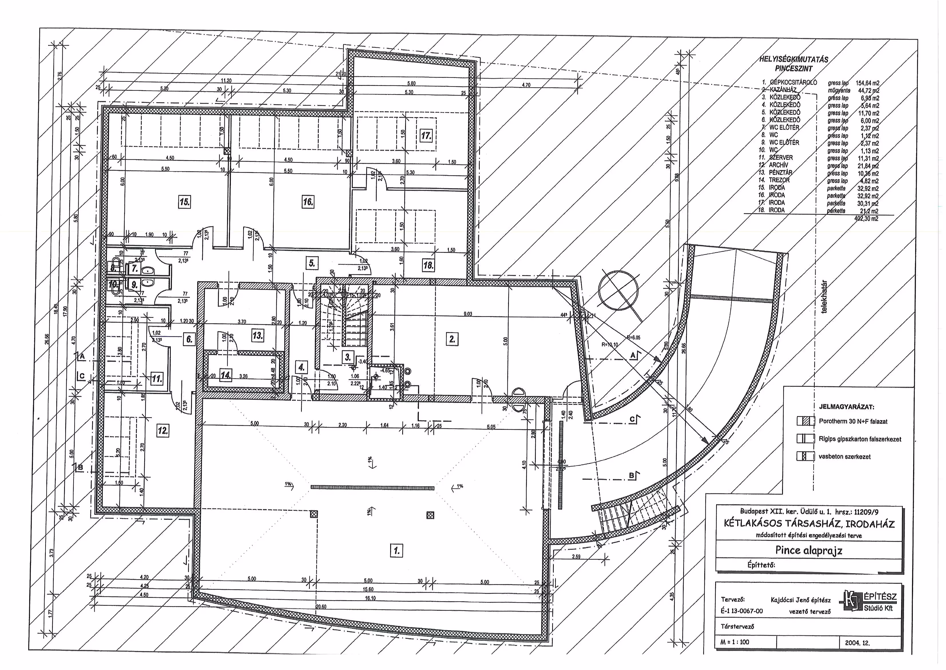
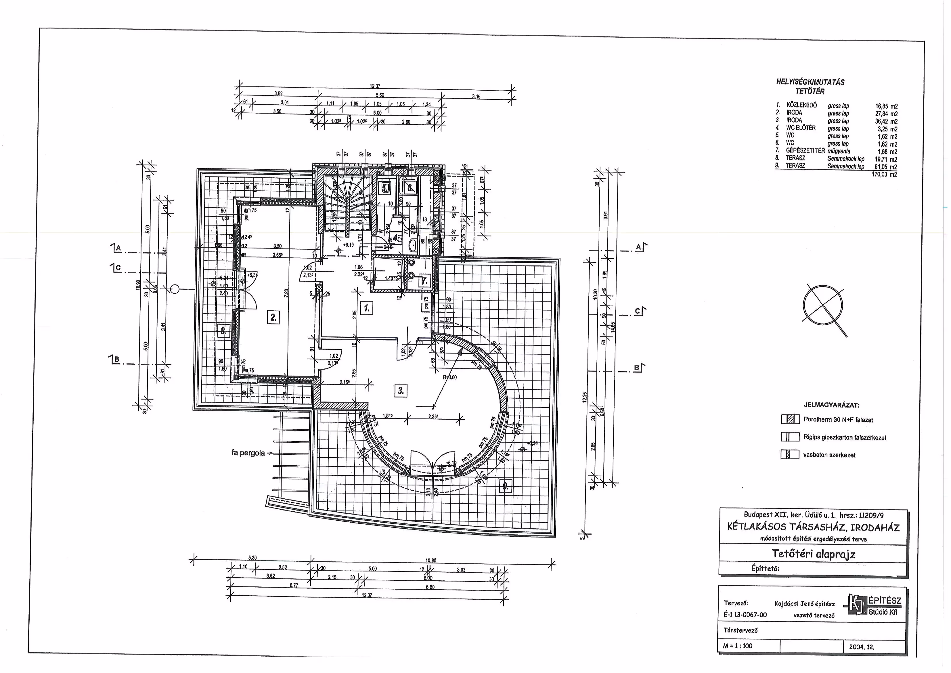
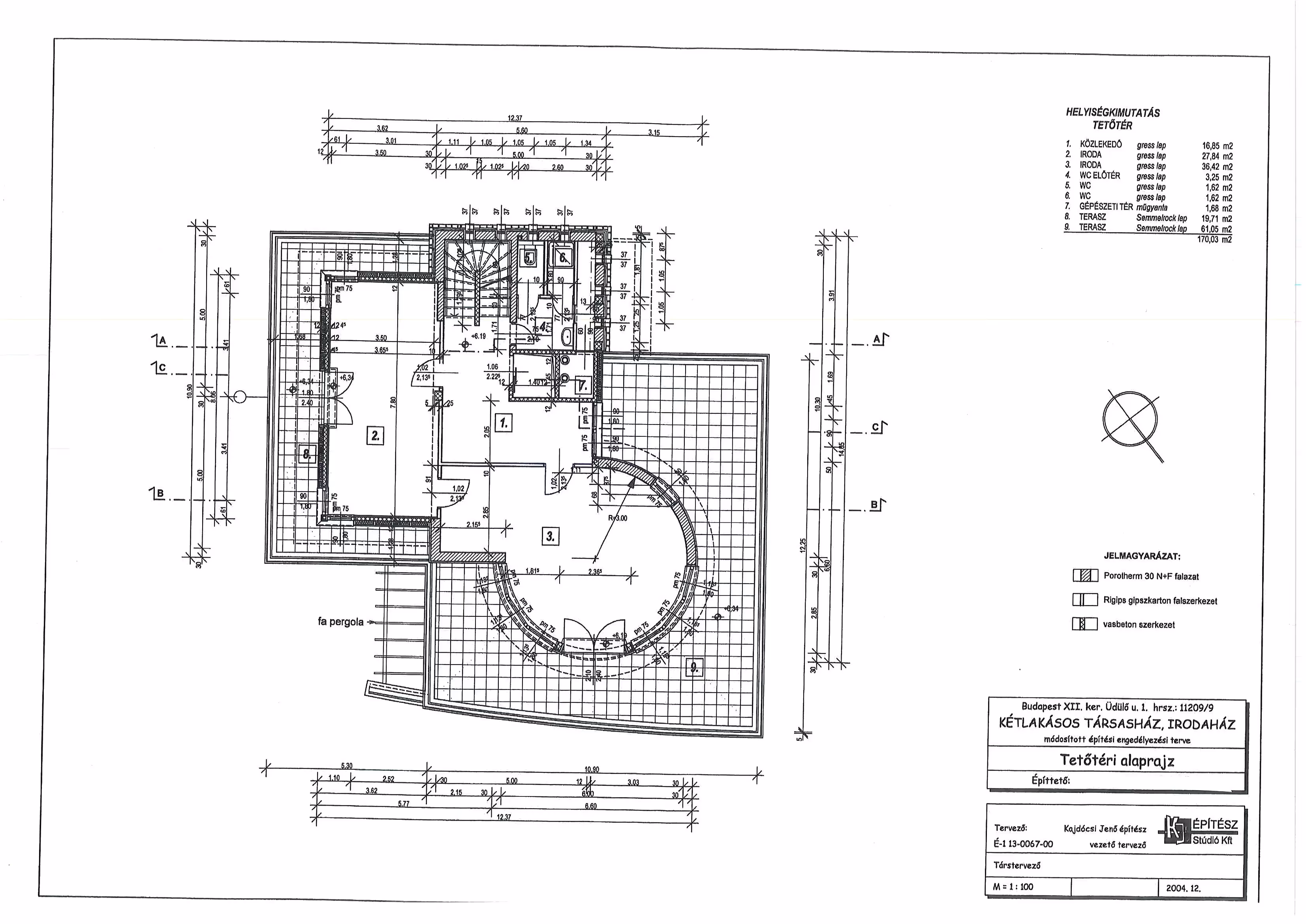
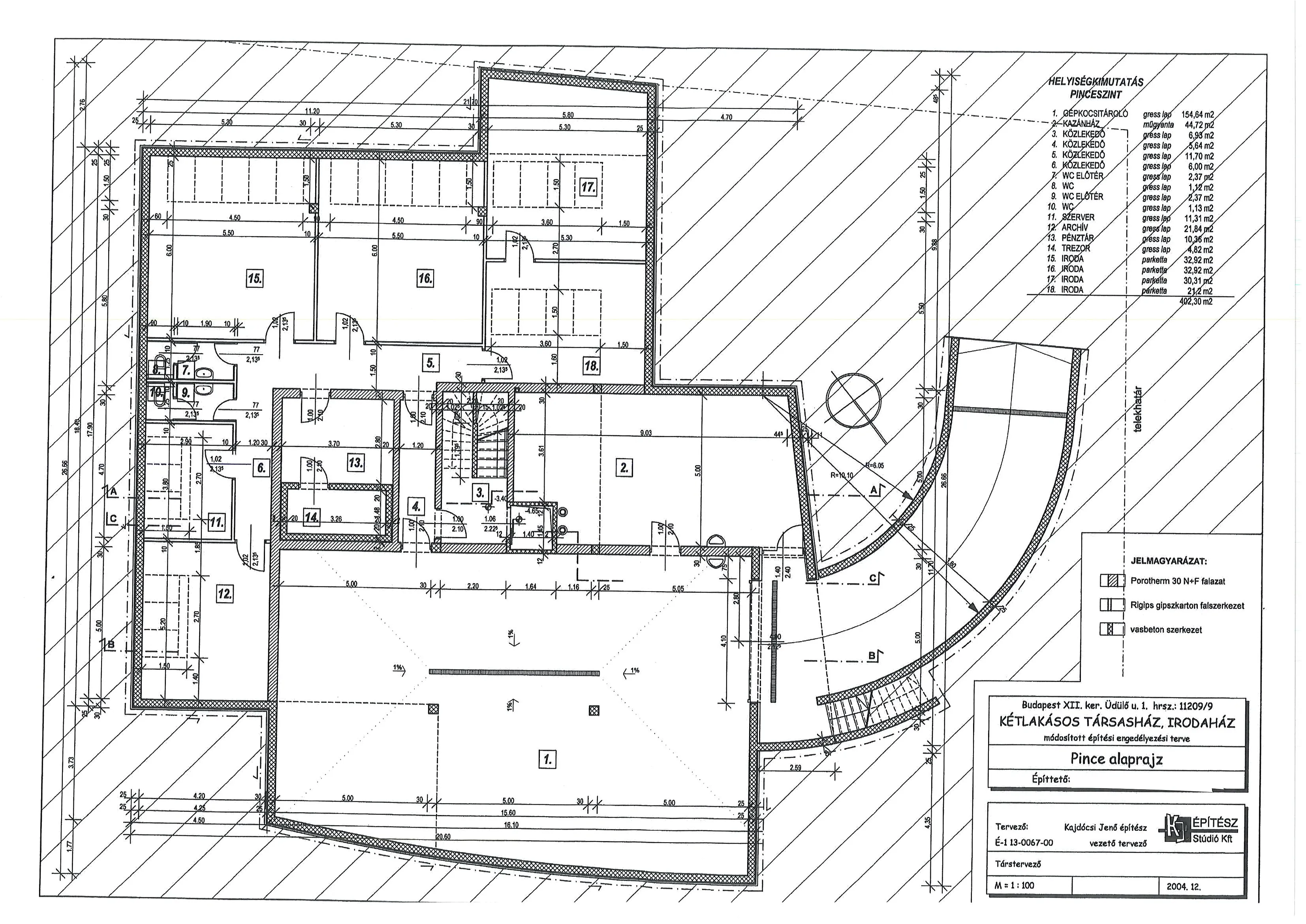
Az ingatlan egy 1804 m2 területű, gyönyörűen füvesített, dísznövényekkel tarkított telken található, melyen 1050 m2 hasznos alapterületű, 3-emeletes, mélygarázssal rendelkező épület helyezkedik el. Az épület kiválóan alkalmas irodaépületként, klinikaként, hivatalként vagy lakó-rezidenciaként történő üzemeltetéshez. Nyáron az ingatlant körülvevő erdő szép fáinak sűrű lombjai közül élénk madárcsicsergés és a természet egyéb megnyugtató hangjai hallhatók, míg télen a hóesés gyönyörű hófehér tájjá varázsol mindent.
Az ingatlan közvetlen közelében ismert és szép túraútvonalak indulnak a budai hegyek irányába, remek kikapcsolódást és mozgási lehetőséget biztosítva. A környék levegője itt a legtisztább a fővárosban, köszönhetően a dús vegetációnak. A közelben akár a Budakeszi úton vagy Budakeszin iskolák, hivatalok, éttermek és boltok találhatók.
Az épületben egy hatalmas előtér, egy nagytárgyalóként használható helyiség, 4 kistárgyalónak is beillő helyiség és 6 szoba található összekötő terekkel, lifttel, egy nagy garázzsal, a garázsszinten szintén szobákkal és egy konyhával-ebédlővel. A telek teljes mértékben közművesített. Az ingatlan előtt, az Üdülő utcában sok autó parkolásához elegendő hely található.
Az ingatlan, bár zöldövezetben található, jól, könnyen és gyorsan megközelíthető bármilyen irányból. A belvárosból vagy a Széll Kálmán-térről autóval 15 perc, tömegközlekedéssel 20-25 perc. Budakeszi irányából pedig az M1 és M3 autópálya kivezető szakasza 10 perc alatt elérhető. Pár percre található az Országos Korányi Pulmonológiai Intézet és az Országos Orvosi Rehabilitációs Intézet, továbbá a Budakeszi Vadaspark, illetve a Gyermekvasút.
További információkért és mutatással kapcsolatban keressen bizalommal.

Az ingatlan
paraméterei
Nézzen körbe leendő otthonában!
Térkép és elhelyezkedés

Felkutatom, amire azt mondják: lehetetlen
Abban hiszek, hogy az ügyfelek igényeinek gyors és reális felmérése az igazán hatékony munka alapköve, amivel mindenkinek segíthetek álomingatlant találni. Meggyőződésem, hogy fel kell ismerni, és gyorsan kell lereagálni az olykor váratlan lehetőségeket és helyzeteket. A végsőkig kitartó, kreatív, maximalista és céltudatos vagyok.
Célom, hogy a hazai ingatlanbefektetőket és a leendő lakástulajdonosokat összekössem a számukra tökéletes ingatlannal, amiben minden perc boldogan telik majd, vagy jelentős megtérülést hoz. ÉN Hiszem, hogy az ingatlan Érték!
A kérdés csak az, hogy “Értékeit” kire bízza?
Ha profi szakembert keres, forduljon hozzám bizalommal!





.avif)
.avif)
.avif)
.avif)
.avif)
.avif)
.avif)
.avif)
.avif)
.avif)
.avif)
.avif)
.avif)
.avif)
.avif)
.avif)
.avif)
.avif)
.avif)
.avif)
.avif)
.avif)






