Budapest 3. kerület - Építési engedélyezés alatt álló, prémium fejlesztési telek
Részletes leírás
az ingatlanról
Építési engedélyezés alatt álló, prémium fejlesztési telek a III. kerületben
Kivételes befektetési lehetőség Budapest III. kerületének közkedvelt, dinamikusan fejlődő részén: eladó egy 511 m²-es, teljesen közművesített, üres építési telek, kész tervdokumentációval és beadott engedélyezési eljárással.
A projekt elvi építési engedéllyel rendelkezik, a végleges engedély várhatóan 2026. március végéig megszerzésre kerül.
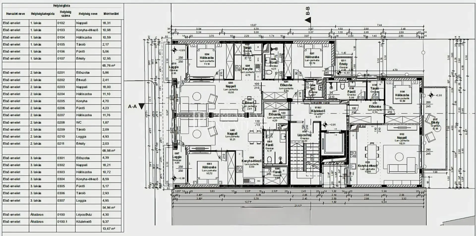
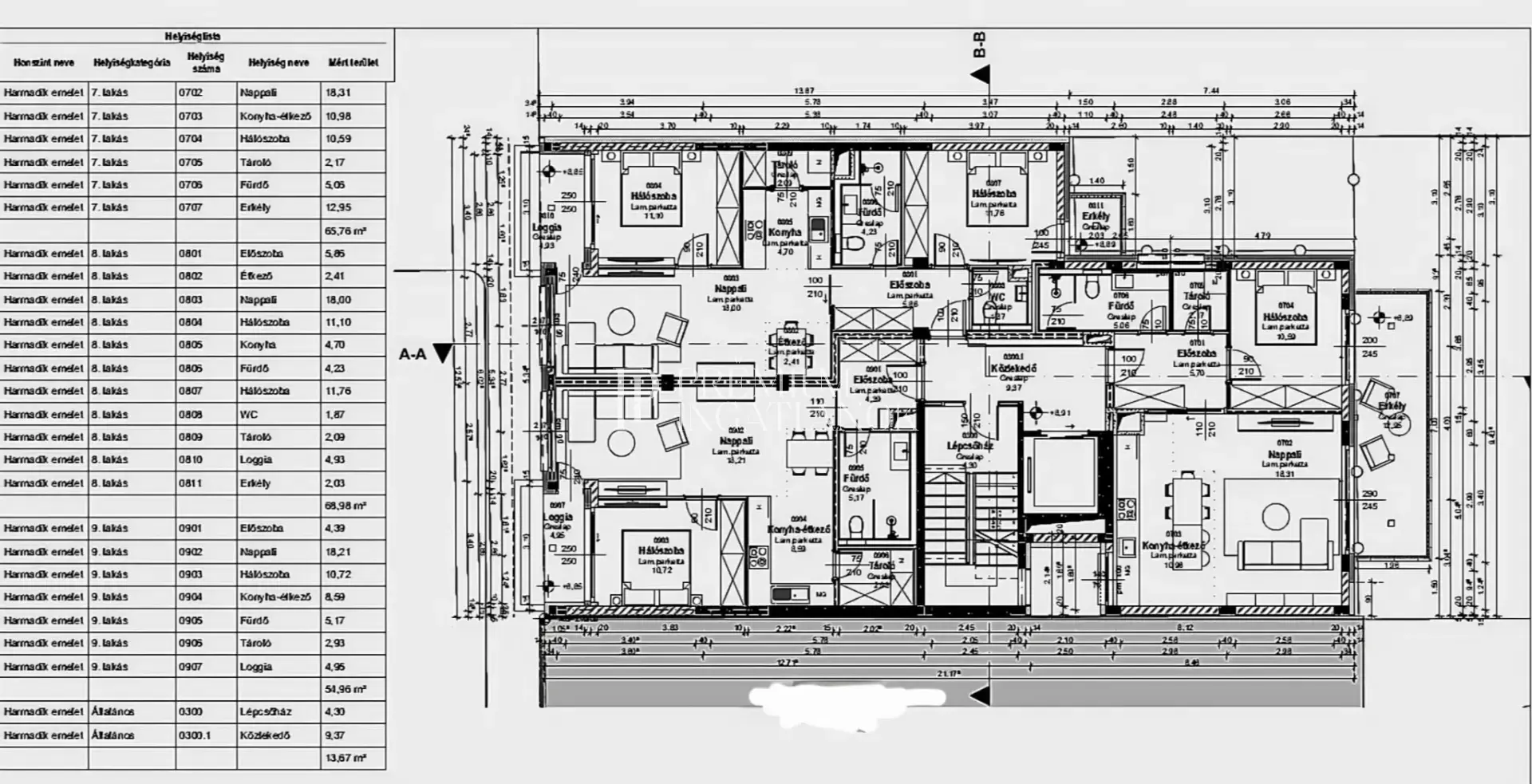
Tervezett fejlesztés főbb paraméterei:
- 5 szintes társasház
- 12 lakás
- Összes nettó lakóterület: 754 m²
- Összes teraszfelület: 100 m²
- 10 db gépkocsi-beálló
- 12 db tároló
A gondosan előkészített terv modern, piacképes lakásmixet biztosít, amely ideális mind értékesítési, mind hosszú távú bérbeadási célra. A környék infrastruktúrája kiváló, jól megközelíthető, keresett lakóövezet, amely stabil befektetési környezetet jelent.
A telek teljes közműellátottsággal rendelkezik, így a kivitelezés az engedély megszerzését követően rövid időn belül megkezdhető.
Ideális választás fejlesztők, beruházók számára, akik egy előkészített, engedélyezési fázisban lévő, azonnal továbbvihető projektet keresnek Budapest egyik legnépszerűbb kerületében.
További részletekért és a tervdokumentáció megismeréséért keressen bizalommal.

Az ingatlan
paraméterei
Nézzen körbe leendő otthonában!
Térkép és elhelyezkedés

Felkutatom, amire azt mondják: lehetetlen
Abban hiszek, hogy az ügyfelek igényeinek gyors és reális felmérése az igazán hatékony munka alapköve, amivel mindenkinek segíthetek álomingatlant találni. Meggyőződésem, hogy fel kell ismerni, és gyorsan kell lereagálni az olykor váratlan lehetőségeket és helyzeteket. A végsőkig kitartó, kreatív, maximalista és céltudatos vagyok.
Célom, hogy a hazai ingatlanbefektetőket és a leendő lakástulajdonosokat összekössem a számukra tökéletes ingatlannal, amiben minden perc boldogan telik majd, vagy jelentős megtérülést hoz. ÉN Hiszem, hogy az ingatlan Érték!
A kérdés csak az, hogy “Értékeit” kire bízza?
Ha profi szakembert keres, forduljon hozzám bizalommal!











