2600 Vác - Vác legexkluzívabb otthona ahol a luxus és a harmónia találkozik
Részletes leírás
az ingatlanról
Vác legexkluzívabb otthona ahol a luxus és a harmónia találkozik
Vácon, a város egyik legmodernebb, legkedveltebb részén vár rád ez a lenyűgöző, új építésű minimál villa, amely minden négyzetméterében a prémium minőséget, a kifinomult eleganciát és a kényelmet sugározza.
343 m² lakótér, 1200 m² parkosított telek, medence, szauna, 5 autós beálló ez nem csupán egy ház, hanem életérzés.
Ne csak házat keress találd meg az igazi otthonodat, ahol minden részlet rólad szól!
________________________________________
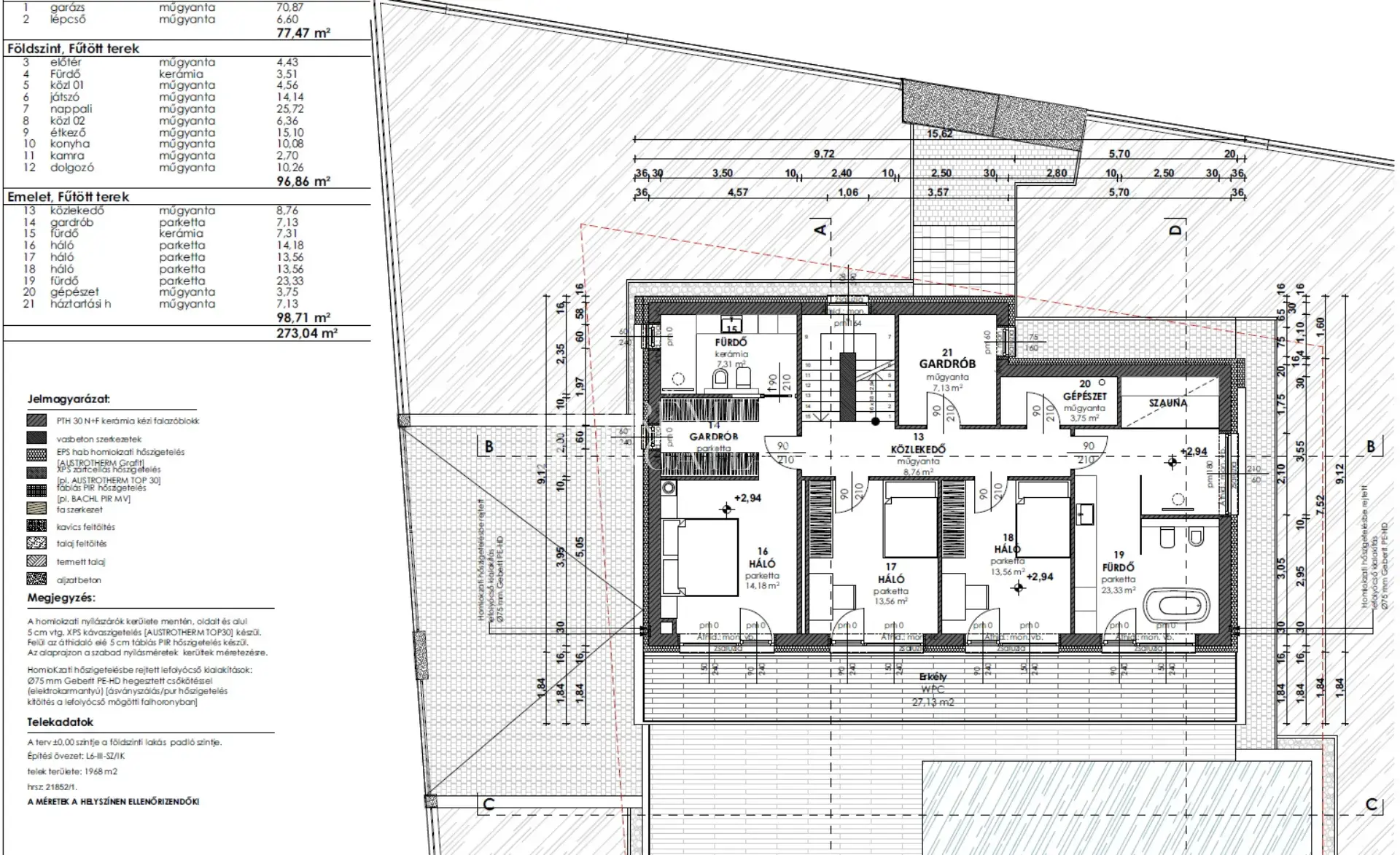
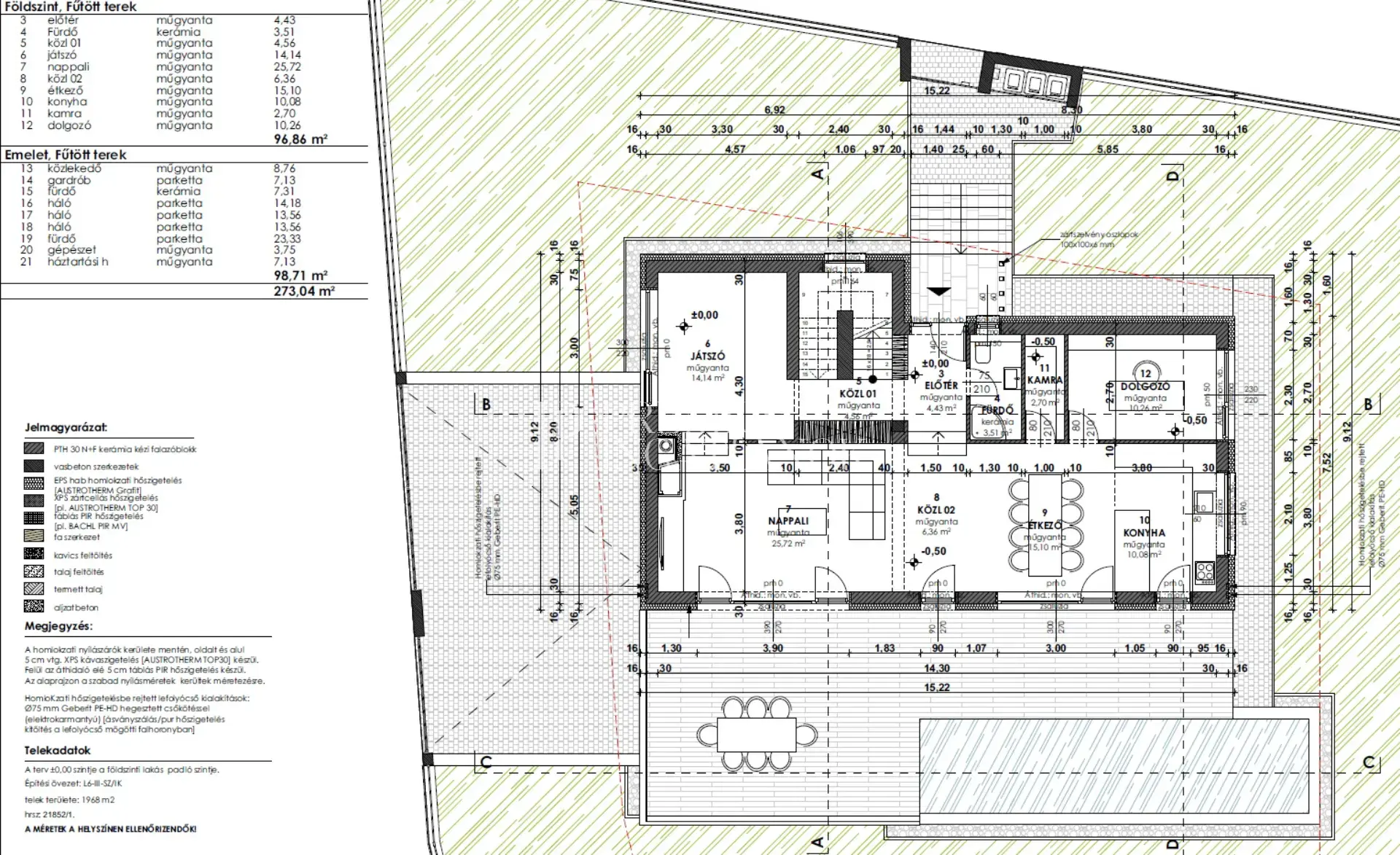
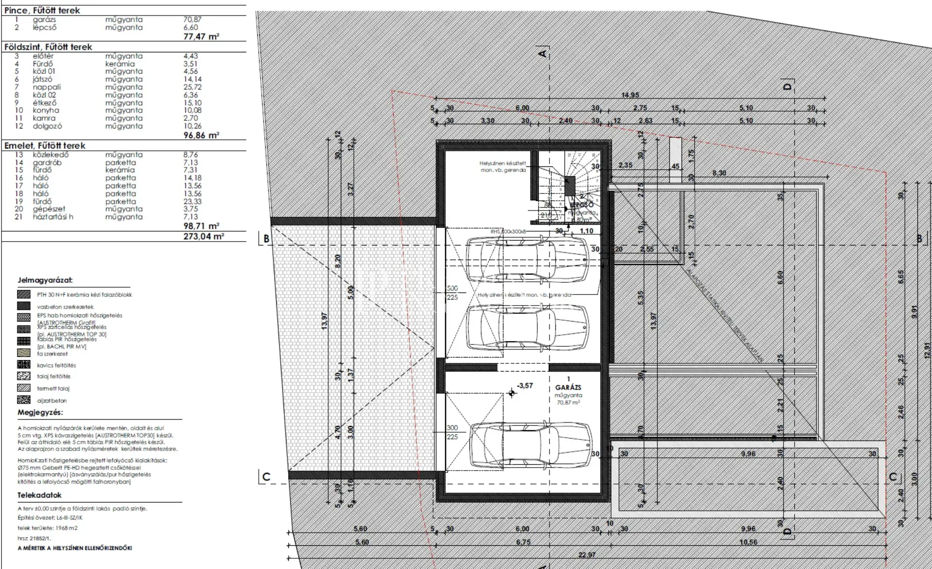
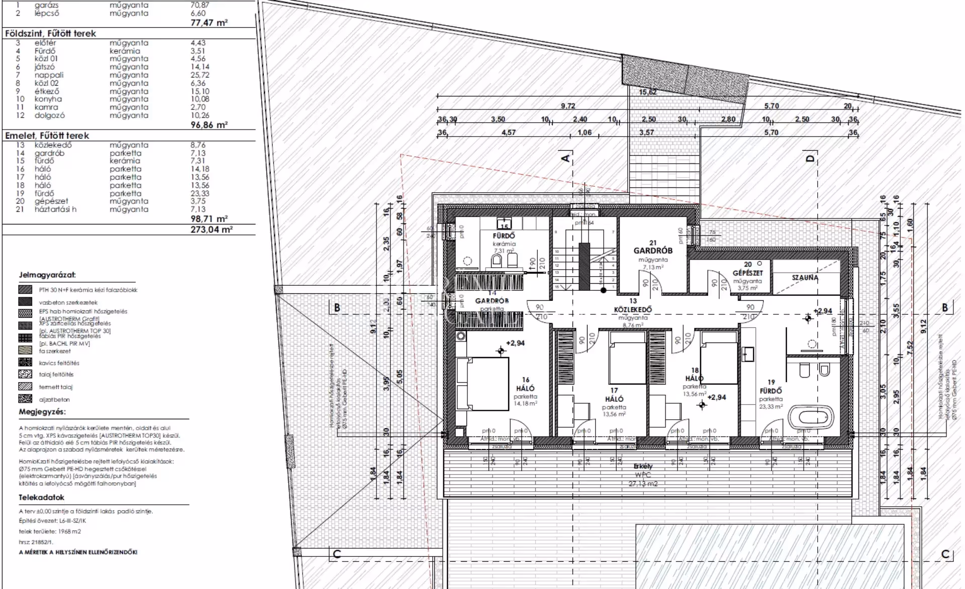
A főépület (273 m²)
77 m²-es, háromállásos garázs
Tágas földszint: amerikai konyhás nappali, étkező, kamra, vendégfürdő, játszósarok (14 m² akár külön szoba is lehet), valamint egy dolgozószoba
Emelet: szülői lakosztály gardróbbal és privát fürdővel, két gyerekszoba, 23 m²-es fürdő infra szaunával, plusz egy félszoba
________________________________________
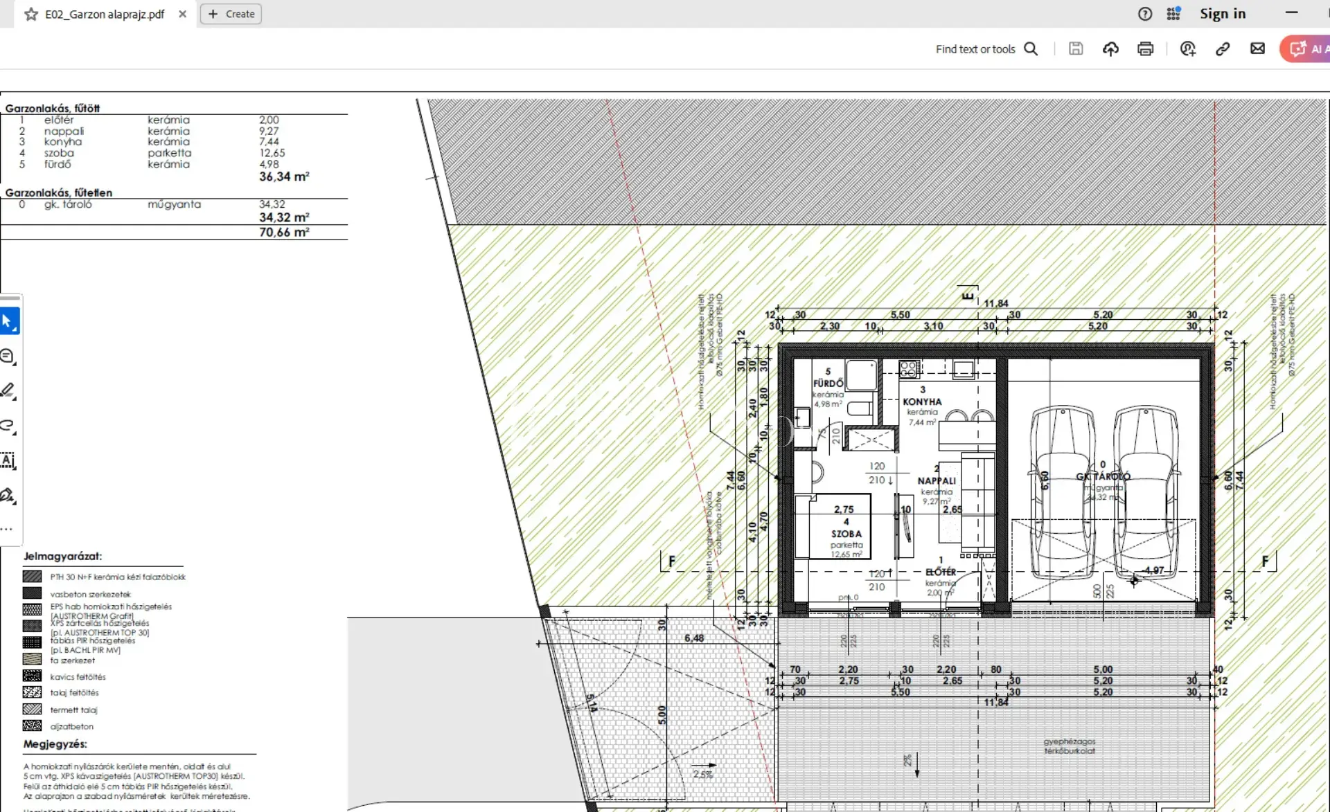
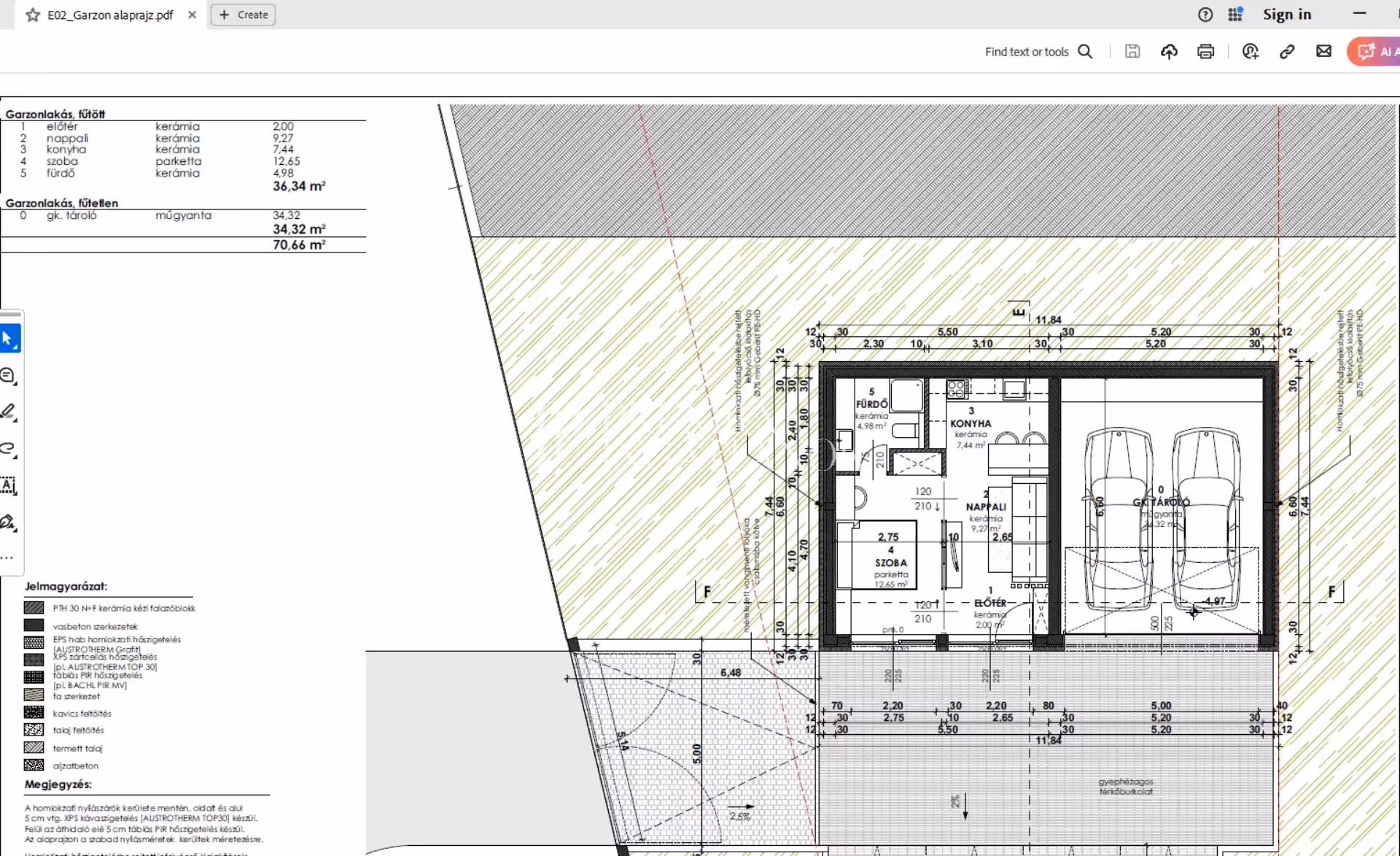
Vendégház (70 m²)
36 m²-es apartman (jelenleg konditerem) ideális vállalkozásra, vendégszobának vagy lakrészként
34 m²-es, kétállásos garázs
________________________________________
Kültér & extrák
1200 m² parkosított kert automata öntözőrendszerrel
70 m²-es, részben fedett terasz
9 x 2,5 m beépített, fóliázott úszómedence
30 m²-es emeleti erkély
Beépített infra szauna az emeleti fürdőben
________________________________________
Műszaki tartalom a modern technológia szolgálatában
30-as Porotherm falazat + 16 cm grafitos szigetelés
3 rétegű nyílászárók elektromos zsalúziával
Hővisszanyerős légtechnika, 10 kW napelem
Padlófűtés, klímák, gépesített konyhabútor
Elektromos kapunyitás, kamerás kaputelefon, riasztórendszer
________________________________________
Ez az ingatlan tökéletes választás azoknak, akik nem érik be a hétköznapival.
Itt a modern technológia, a tágas terek és a wellness-élmény valódi otthonná olvad össze.
Ha mindig is arról álmodtál, hogy egy helyen éld meg a luxust, a nyugalmat és a természet közelségét ez az otthon rád vár!

Az ingatlan
paraméterei
Nézzen körbe leendő otthonában!
Térkép és elhelyezkedés

Felkutatom, amire azt mondják: lehetetlen
Abban hiszek, hogy az ügyfelek igényeinek gyors és reális felmérése az igazán hatékony munka alapköve, amivel mindenkinek segíthetek álomingatlant találni. Meggyőződésem, hogy fel kell ismerni, és gyorsan kell lereagálni az olykor váratlan lehetőségeket és helyzeteket. A végsőkig kitartó, kreatív, maximalista és céltudatos vagyok.
Célom, hogy a hazai ingatlanbefektetőket és a leendő lakástulajdonosokat összekössem a számukra tökéletes ingatlannal, amiben minden perc boldogan telik majd, vagy jelentős megtérülést hoz. ÉN Hiszem, hogy az ingatlan Érték!
A kérdés csak az, hogy “Értékeit” kire bízza?
Ha profi szakembert keres, forduljon hozzám bizalommal!



























