Budapest 14. kerület - Stefánia út történelmi elegancia, modern luxus kiadó 1. emeleti lakás
Részletes leírás
az ingatlanról
Stefánia út történelmi elegancia, modern luxus - KIADÓ 1. emeleti lakás
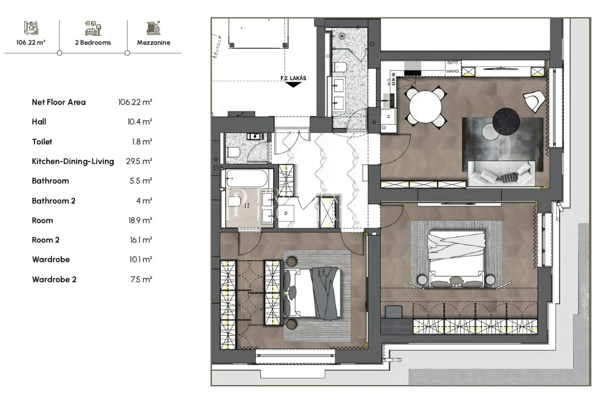
Lépjen be a századforduló hangulatát őrző, mégis korszerűen felújított villába a Stefánia úton! A 2. emeleten, délnyugati tájolással és 15,6 m²-es terasszal rendelkező, nettó 103 m²-es lakás hosszú távra KIADÓ.
Főbb adatok
Alapterület: 103 m²
Szobák: tágas amerikai konyhás nappali + 2 hálószoba
Vizesblokkok: 2 fürdőszoba + külön WC
Parkolás: zárt felszíni beálló SAJÁT, 11 kW-os elektromosautó-töltővel (a bérleti díj tartalmazza)
Költözhetőség: megbeszélés szerint
Műszaki tartalom & okosotthon
Levegővíz hőszivattyú, padlófűtés, fan-coil hűtés
Loxone okosotthon: fűtés/hűtés, világítás és árnyékolás mobilról vezérelhető
Korszerű hőszigetelés kerámia bevonattal
Prémium burkolatok: halszálka mintázatú Edelholz tölgy parketta, fagyálló Jura mészkő
Szaniterek: Geberit, Grohe
Világítás: beépített spotok, LED szalagok
Biztonság & kényelem
Mozgásérzékelős riasztó
Okostelefonról vezérelhető kaputelefon
Zárt, rendezett udvar; saját parkolóhely töltővel
Lokáció
A Stefánia út ikonikus, platánfás sugárútja pár perc sétára a Városligettől. Kiváló közlekedés: M2 metró Puskás Ferenc Stadion megálló a közelben, gyors belvárosi kapcsolat. A környék kulturális és rekreációs kínálata (Széchenyi Fürdő, Vajdahunyad vára, Magyar Zene Háza, Állatkert) páratlan.
Kinek ideális?
Azoknak, akik értékelik a történelmi környezet és a high-tech kényelem ritka kombinációját; otthonról dolgozó pároknak, két hálós megoldást kereső bérlőknek, illetve elektromos autóval közlekedőknek saját 11 kW-os töltővel.

Az ingatlan
paraméterei
Nézzen körbe leendő otthonában!
Térkép és elhelyezkedés

Felkutatom, amire azt mondják: lehetetlen
Abban hiszek, hogy az ügyfelek igényeinek gyors és reális felmérése az igazán hatékony munka alapköve, amivel mindenkinek segíthetek álomingatlant találni. Meggyőződésem, hogy fel kell ismerni, és gyorsan kell lereagálni az olykor váratlan lehetőségeket és helyzeteket. A végsőkig kitartó, kreatív, maximalista és céltudatos vagyok.
Célom, hogy a hazai ingatlanbefektetőket és a leendő lakástulajdonosokat összekössem a számukra tökéletes ingatlannal, amiben minden perc boldogan telik majd, vagy jelentős megtérülést hoz. ÉN Hiszem, hogy az ingatlan Érték!
A kérdés csak az, hogy “Értékeit” kire bízza?
Ha profi szakembert keres, forduljon hozzám bizalommal!








.webp)


.webp)




















