1025 Budapest -Klasszikus luxus újracsomagolva – Szemlőhegyi Villák
Részletes leírás
az ingatlanról
Kivételes luxusvillák Budapest szívében – egyedülálló ajánlat a Szemlőhegyen
A budai II. kerület legelőkelőbb részén, a Szemlőhegy csendes domboldalában, két egymással harmonizáló, mégis önálló luxusvilla keresi új tulajdonosát. A két, külön helyrajzi számon nyilvántartott, 1900-as évek elején épült és 2013-ban prémium szinten felújított ingatlan a főváros egyik legexkluzívabb portfólióját képviseli.
A több mint 4 200 m²-es, gondozott, szökőkutas és parkosított telkeken fekvő villák összesen több mint 3 600 m² lakóterületet, 600 m² terasz- és wellnesszónát, valamint beltéri és kültéri medencéket, jakuzzikat, szaunákat, squash- és fitnesztermet, továbbá lifttel ellátott szinteket kínálnak.
Mindkét villa csendes, több utcafrontos, forgalommentes környezetben található, pár percre a városközponttól, nagykövetségek, rezidenciák és exkluzív villák szomszédságában.
Főbb jellemzők:
- Összesen 19 szoba, több nappali, könyvtár, bárszobák, dolgozószobák
- Wellness részleg: beltéri/kültéri medencék, infraszaunák, jakuzzik, fitnesztermek
- Tetőteraszok lélegzetelállító panorámával a városra
- Két villa: 1580 m² és 1472 m² lakóterülettel
- Teljes infrastruktúra: padlófűtés, fan-coil rendszer, légkondicionálás, lift
- 5 szint / villa, külön bejáratok, személyzeti szobák, garázsok
- Hasznosítás: többgenerációs otthon, diplomáciai rezidencia, privát klub vagy hosszú távú vagyonőrzés
Ez a páratlan kínálat nem csupán ingatlan – hanem életstílus, befektetési lehetőség és reprezentáció egyben. Ebben a szegmensben nem az ár a döntő – hanem a hozzáférés.
Ezek az ingatlanok ideálisak többgenerációs befektetésekhez, diplomáciai vagy nemzetközi rezidenciális célokra, vagy akár hosszú távú vagyonőrzésre. Ebben a szegmensben már nem az ár a kulcs – hanem a hozzáférés.
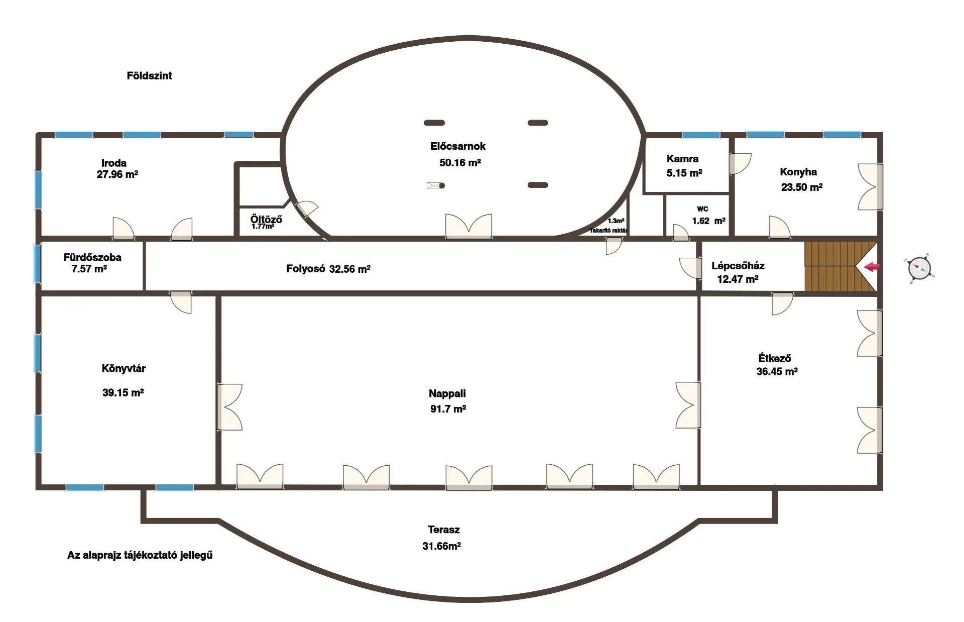
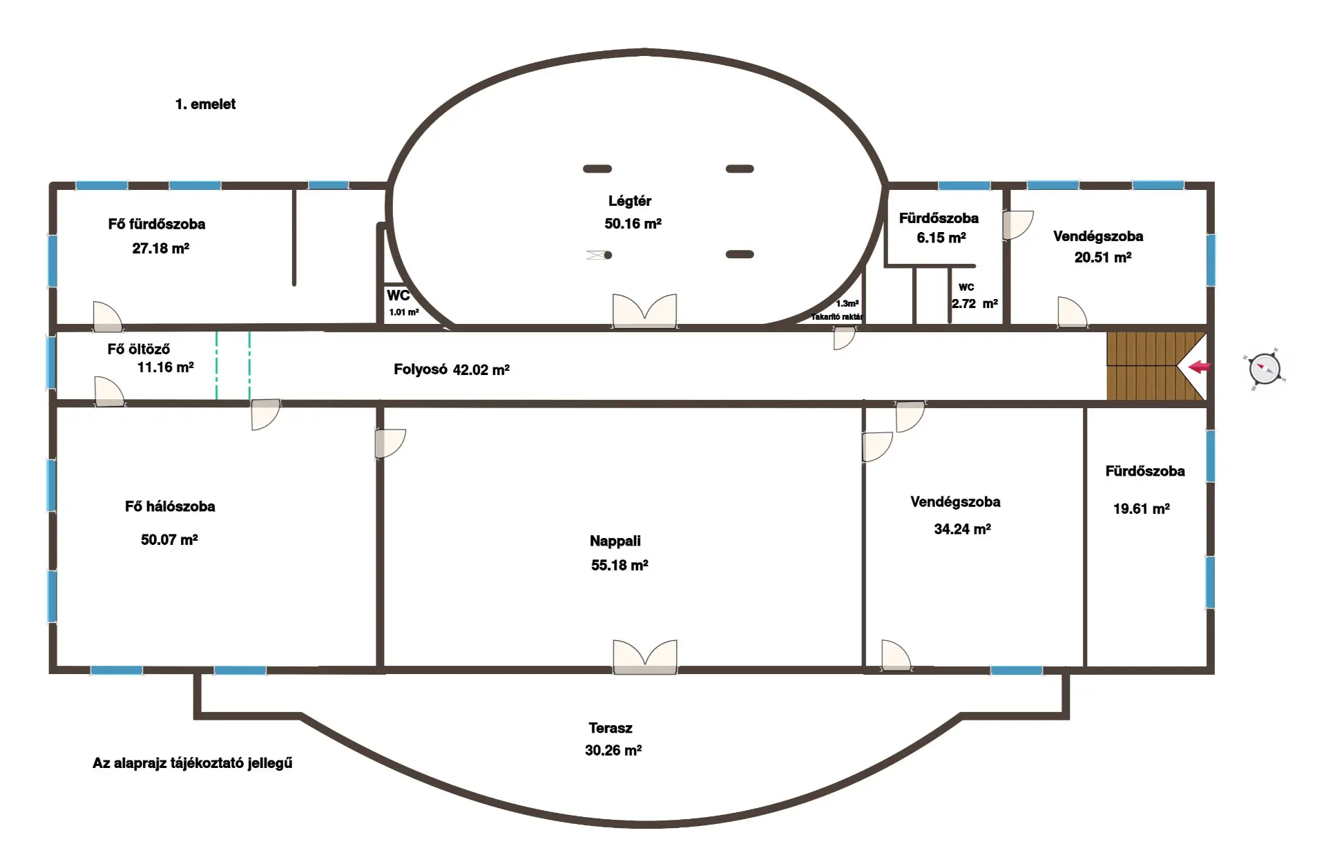
Ingatlan 1.
Az ingatlan Budapesten, a II. kerület Szemlőhegyen, domboldali telken, két kis forgalmú utca sarkán található.
Autóval és busszal is megközelíthető. A közlekedési kapcsolatok jók, a városközpont gyorsan elérhető. Kertvárosi területen, előkelő környezetben található. A közelben családi házak és apartmanok, luxusvillák, nagykövetségi épületek, lakóházak, üzleti központok találhatók. Az infrastruktúra jó: sportközpont, iskolák, bevásárlóközpont, posta, egészségügyi intézmények könnyen elérhetőek.
Az épület szabadon álló, 1910 körül épült, hagyományos szerkezetű pincével és pincével, földszinttel, emelettel és tetőtérrel. A felső emeletekről gyönyörű panoráma nyílik a városra, amit tetőterasz és a legfelső emeleten pezsgőfürdő egészít ki.
A luxus és kifinomult villa jól felszerelt és magas szintű kényelmet biztosít. Az ingatlan berendezése és kivitelezése magas színvonalú. A fűtést, hűtést és szellőzést fan-coil rendszer biztosítja, az épületben pedig padlófűtés is található. Az épületben számos szauna, pezsgőfürdő, kültéri és beltéri úszómedence található. Lift is található benne.
2013 körül az ingatlant teljesen felújították és prémium színvonalon korszerűsítették. Azóta folyamatos karbantartás mellett üzemelteti.
Telek és épület
A telek övezete Lk-2/SZ8, a telek legfeljebb 20%-a szabadon álló beépítésre alkalmas.
A szabályozási övezetben megengedett maximális alapterület 0,6 m²/m².
A maximális építménymagasság 8,0 méter.
A telek karbantartott, szökőkúttal és igényes parkosítással.
A telek területe 2063 m², míg az épület teljes alapterülete 1580 m², további 406 m² terasszal és medencés területtel.
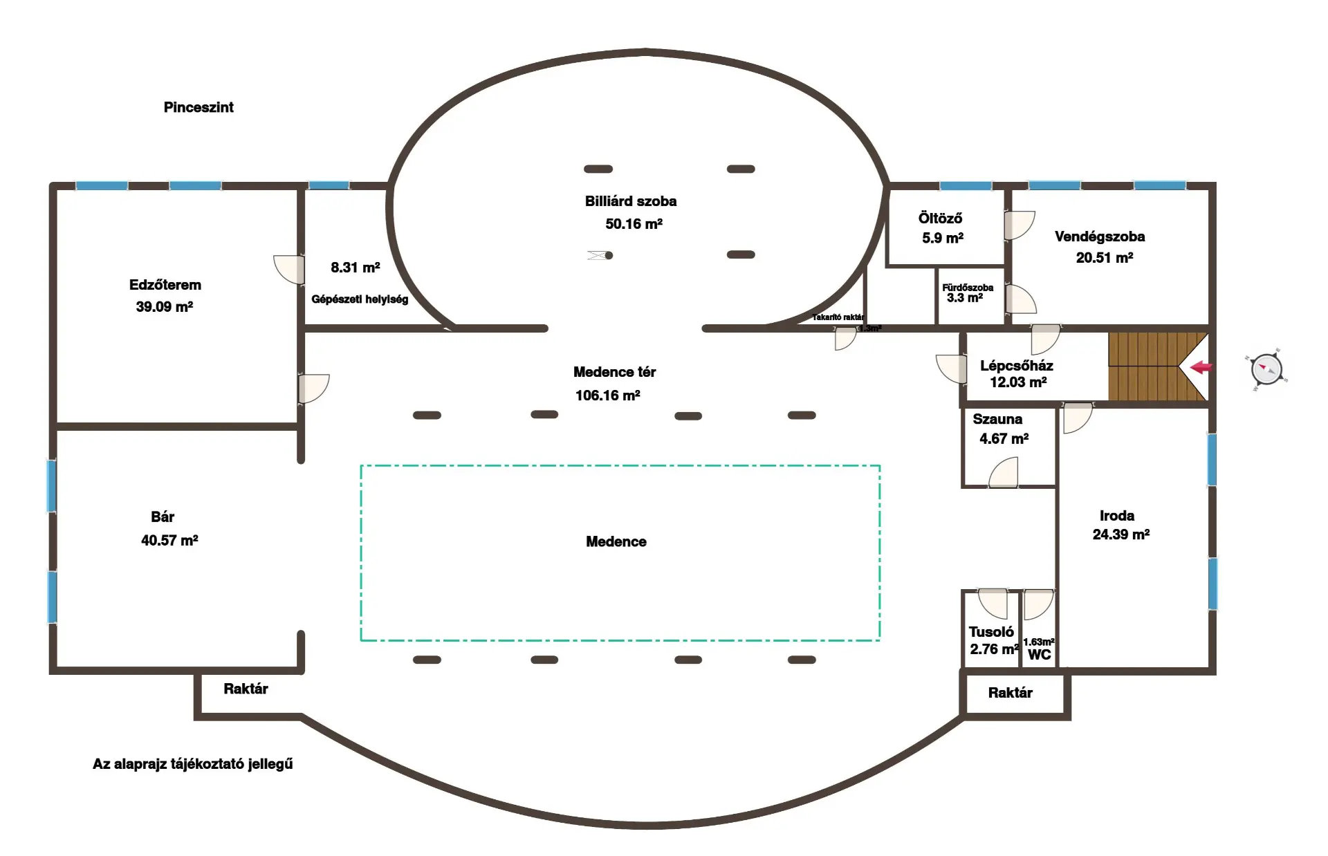
Elrendezés
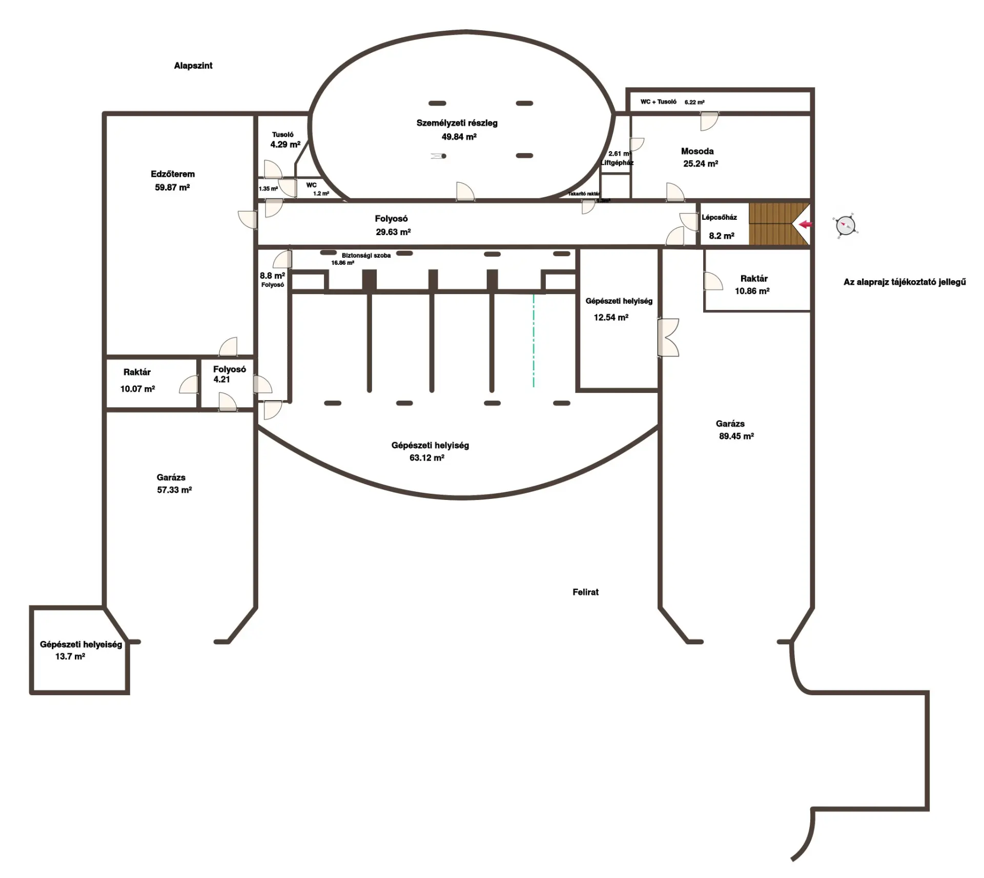
A pinceszinten található egy medence és társalgó, szauna, rekreációs helyiség és személyzeti szobák, valamint garázsok. A pinceszinten található egy squashpálya, fitneszterem, gőzfürdő, szauna, szolárium és gépészeti helyiségek. A földszinten található egy 54 m2-es nappali, dolgozószoba, előszoba, konyha, étkező, bárszoba, könyvtár és egy kültéri medence. Az emeleten található a nappali hálószobákkal, dolgozószobával és társalgóval.
Ingatlan 2
A bemutatott ingatlan egy különálló, 1910 körül épült, enyhén lejtős telken, hagyományos szerkezettel, pincével, pincével, földszinttel, emelettel és padlással. A felső emeletekről panorámás kilátás nyílik. Az ingatlan egy luxus és kifinomult villaépület. Magas színvonalú kivitelezéssel és jól felszereltséggel rendelkezik. A fűtést-hűtést és a szellőztetést fan-coil rendszer biztosítja, kiegészítő padlófűtéssel. Az épületben számos szauna, jakuzzi, kültéri és beltéri medence található.
2013 körül az ingatlant teljes körűen felújították és prémium színvonalon korszerűsítették. Azóta folyamatos karbantartás mellett üzemeltetik.
A telek teljes területe 2221 m², az épület teljes alapterülete 1472 m², további 175 m² terasszal és medencével.
A telek övezetbesorolása Lk-2/SZ8
A telek maximum 20%-án szabadon álló építmények építhetők be.
A maximális alapterület 0,6 m²/m².
A maximális építménymagasság 8,0 m.
A telek rendezett, igényesen parkosított, két utcafrontról, két külön bejárattal megközelíthető.
Elrendezés
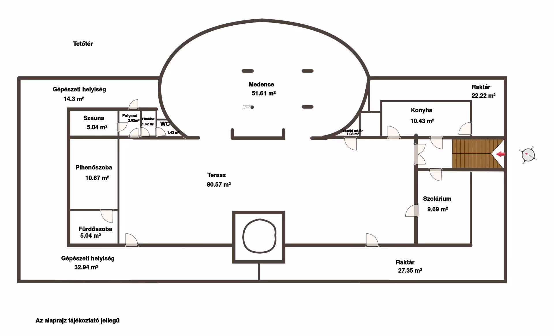
A legfelső emeleten található egy tetőterasz további szobákkal, jakuzzival és úszómedencével. Az emeleten található a nappali szint hálószobákkal, dolgozószobával és egy társalgóval. A földszinten található egy 90 m2-es nappali, 2 dolgozószoba, előszoba, konyha és étkező. A pinceszinten található egy fitneszterem, 2 nagy garázs és gépészeti helyiségek. A pinceszint a telek lejtése miatt részleges földszinti hozzáféréssel is rendelkezik. Ezen a szinten található egy úszómedence, egy rekreációs helyiség, egy szauna, egy szabadidős helyiség és egy tanári szoba.
A két, külön helyrajzi számon szereplő villaépület, elsősorban, együtt eladó, de mindezen szándék, ajánlattételtől függő.

Az ingatlan
paraméterei
Nézzen körbe leendő otthonában!
Térkép és elhelyezkedés

Felkutatom, amire azt mondják: lehetetlen
Abban hiszek, hogy az ügyfelek igényeinek gyors és reális felmérése az igazán hatékony munka alapköve, amivel mindenkinek segíthetek álomingatlant találni. Meggyőződésem, hogy fel kell ismerni, és gyorsan kell lereagálni az olykor váratlan lehetőségeket és helyzeteket. A végsőkig kitartó, kreatív, maximalista és céltudatos vagyok.
Célom, hogy a hazai ingatlanbefektetőket és a leendő lakástulajdonosokat összekössem a számukra tökéletes ingatlannal, amiben minden perc boldogan telik majd, vagy jelentős megtérülést hoz. ÉN Hiszem, hogy az ingatlan Érték!
A kérdés csak az, hogy “Értékeit” kire bízza?
Ha profi szakembert keres, forduljon hozzám bizalommal!











.webp)

.webp)







.webp)







.webp)
.webp)
.webp)

.webp)
.webp)
.webp)
.webp)



